See more of the Middlecave work here!

Time for another round of photographs from the Middlecave Yard demolition and rebuild.
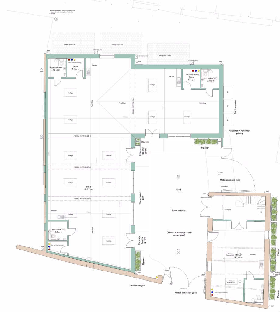
I’ve also managed to dig out a target site plan, something that should help contextualise some of the pictures below. As always, bigger images are just a click away.

The site plan. Middlecave Road runs across the bottom of this plan.

Taken from Back Lane. Since my last trip here are large amount of waste soil and rubble has been removed.

The north boundary from Back Lane. We can see what appear to be wooden forms, possibly for concrete.

The retained barn. This is at the south corner of the site and the bottom right of our plans. There didn’t appear to be any Jackass-esque shenanigans around the porta-loo.

Across the site from near the retained barn. There are more of the forms on the left. Given their positioning, it’s probable that the concrete these forms will cast will make up the bases of the new building frame.

More forms. To the right there appear to be a number of already cast bases. These bases roughly line up with where one might expect a frame to be placed.

A base. It appears to be blocks with a concrete core. The hardcore around it appears to have been rolled.

Across the site looking from Middlecave Road. The retained barn can be seen on the right.

A casting form.