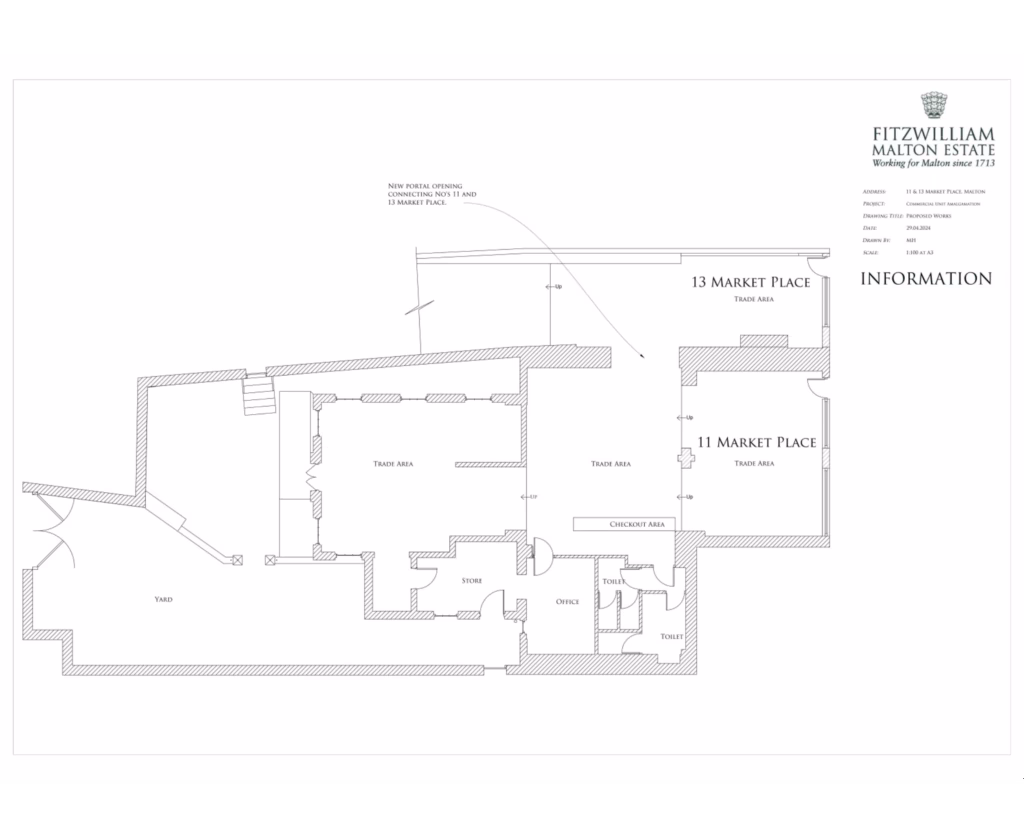
The hoardings for the Kemps Stores expansion from 11 to 13 have gone up!


I also had a little poke around in the planning application and this is the new proposed layout.

The planning application also includes quite a nice potted history of the two plots. It can be found on page 6 of this document.